4, Kenwick Hall Gardens, Station Road, Norfolk, PE34 4XJ
£650,000




Description
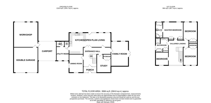
Welcome to 4 Kenwick Hall Gardens - Set on the edge of the highly regarded village of Clenchwarton, and within easy reach of King’s Lynn, this impressive barn-style residence forms part of an exclusive development of five individually designed homes, arranged around a central courtyard with electronically controlled gated access. Constructed in the 1990s to a high specification, the property offers generous and well-balanced accommodation extending to approximately 3,041 sq ft, ideal for modern family living. The accommodation is introduced by an impressive entrance hall with galleried landing. The ground floor provides a range of versatile living spaces including a spacious open-plan kitchen, dining and living area, ideal for entertaining, along with a separate formal dining room, study, and day room. Further ground floor accommodation includes a separate utility room and cloakroom WC. To the first floor are four well-proportioned bedrooms, with the principal bedroom benefiting from an en suite, in addition to a family bath/shower room serving the remaining bedrooms. Outside, the property occupies a generous plot, with the rear garden being mainly laid to lawn and complemented by a patio area with pergola, providing an attractive space for outdoor dining and relaxation. A particular feature of the property is the substantial double garage, offering space for up to four vehicles, together with a workshop area, car port, and ample driveway parking. The development benefits from a secure and private environment, making this an excellent opportunity to acquire a distinctive home in a desirable village setting.
Details
Features
BARN STYLE PROPERTY WITHIN GATED COMMUNITY
FOUR DOUBLE BEDROOMS
ENTRANCE HALL WITH GALLERIED LANDING
ACCOMODATION EXTENDS OVER 3000 SQFT
DOUBLE GARAGE WITH AMPLE OFF ROAD PARKING AND WORKSHOP
THREE RECEPTION ROOMS
OPEN PLAN KITCHEN/DINING/LIVING
PRIVATE REAR GARDENS
ENSUITE TO MASTER
Room Details
Entrance Porch
9' 10" x 4' 04" (3.00m x 1.32m) Entrance door, windows to front aspect, tiled flooring
Hallway
Inner door, wooden flooring, two radiators, stairs to first floor, doors leading to
Kitchen/Open Planning Living
30' 06" x 15' 09" (9.30m x 4.80m) The Kitchen area is laid to tile, a range of base and wall cabinets, worktops, double steel sink with mixer tap over, eye level oven with combi grill above, induction hob with extractor over, tiled splashback, window to rear aspect. The dining area is wooden flooring with double doors leading to the rear garden. The living area is laid to carpet with two windows to rear aspect, a log burner, two vertical radiators
Dining Room
10' 04" x 13' 05" (3.15m x 4.09m) Carpeted, radiator, serving hatch, window to front and side aspect
Study
10' 04" x 13' 05" (3.15m x 4.09m) Carpeted, window to front aspect, radiator
Family Room
12' 09" x 18' 02" (3.89m x 5.54m) Carpeted, vaulted ceiling, window to rear aspect, two radiators, patio doors leading to the rear garden.
Utility Room
9' 03" x 10' 04" (2.82m x 3.15m) Tiled flooring, range of base and wall cabinets, worktops, two windows to front aspect, space for dishwasher, space for washing machine, space for fridge/freezer
Downstairs W/C
5' 10" x 3' 11" (1.78m x 1.19m) Tiled floor with tiled surround, low level flush w/c, hand basin, window to rear aspect
Galleried Landing
Wooden flooring, full length windows to front aspect, radiator, doors leading to
Master Bedroom
14' 11" x 13' 05" (4.55m x 4.09m) Carpeted, full length windows to rear aspect, two built in wardrobes, window to rear aspect, radiator, door leading to
En-Suite
5' 08" x 11' 08" (1.73m x 3.56m) Laminate flooring, p shaped bath with hand held shower attachment, hand basin, low level flush w/c, quadrant shower cubicle, towel radiator, window to rear aspect
Bedroom
10' 04" x 13' 03" (3.15m x 4.04m) Carpeted, built in wardrobe, radiator, two windows to front aspect
Bedroom
10' 04" x 13' 04" (3.15m x 4.06m) Carpeted, built in wardrobe, radiator, two windows to rear aspect
Bedroom
9' 05" x 9' 06" (2.87m x 2.90m) Currently staged as a dressing room, carpeted, window to side and front aspect, radiator.
Family Bathroom
9' 05" x 10' 05" (2.87m x 3.17m) Laminate flooring, tiled surround double ended bath with handheld attachment, his and hers vanity unit with two sinks, low level flush w/c, walk in shower cubicle with rainfall and separate shower attachment, storage cupboard
Double Garage
17' 09" x 18' 06" (5.41m x 5.64m) Electric up and over doors, power and lighting, door leading to
Workshop
17' 09" x 18' 06" (5.41m x 5.64m) Power and lighting, up and over door to rear garden, side door to carport
External
The property is approached through private gates which leads to the exclusive development around a central courtyard, driving up to
the property you have a brick weave driveway which provides ample off road parking as well access to the rear garden through the car port.
The large rear garden is laid to lawn and is fenced and private with ample space - there is a patio area off the rear of the property.